ACASĂ
LUCRĂRI
ARTICOLE
CONTACT
ACASĂ
LUCRĂRI
ARTICOLE
CONTACT
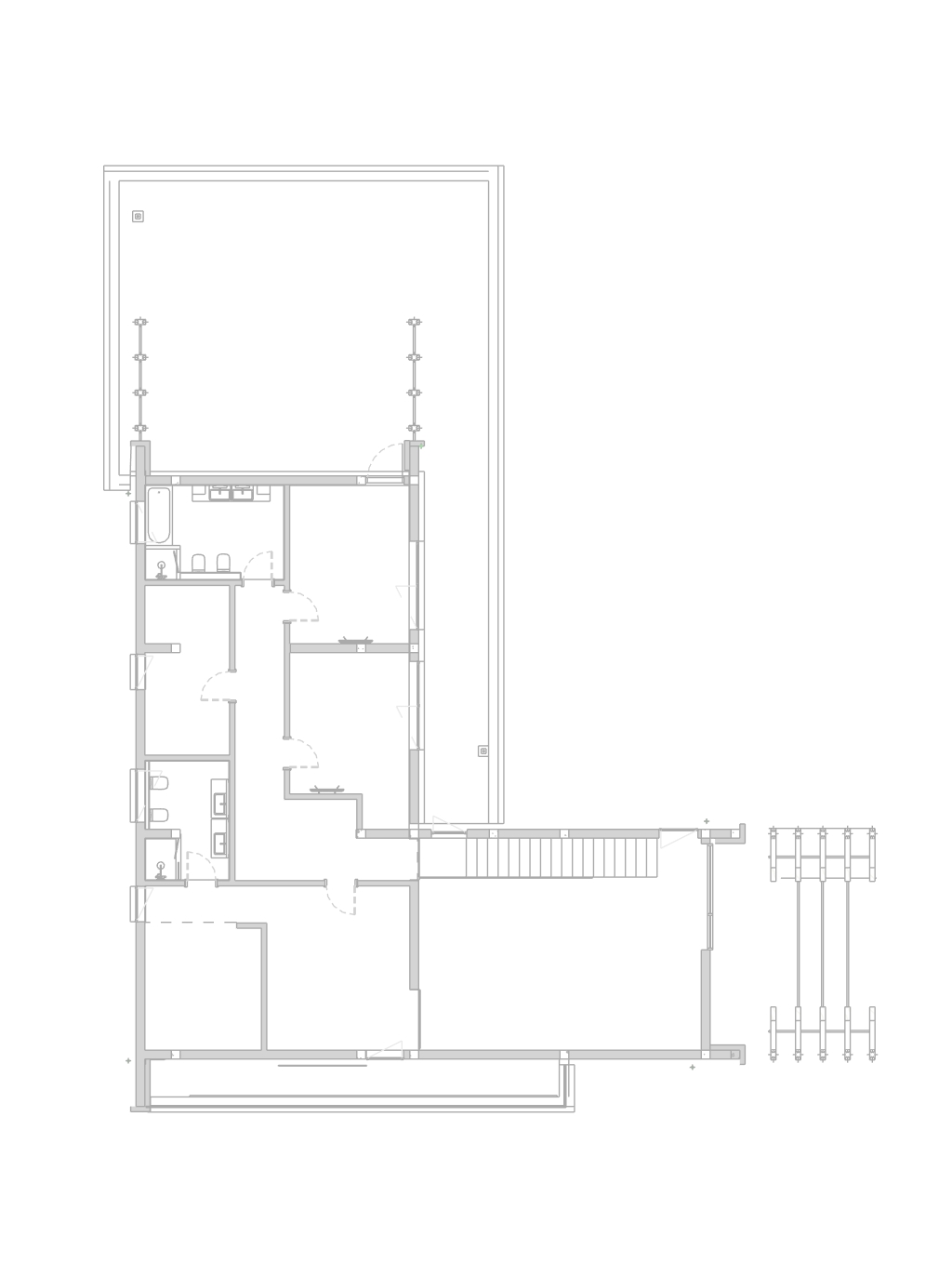
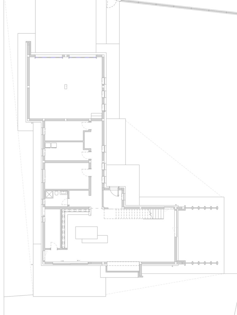
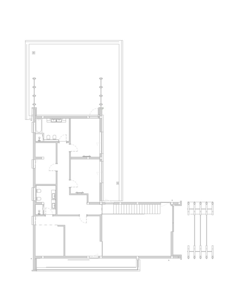
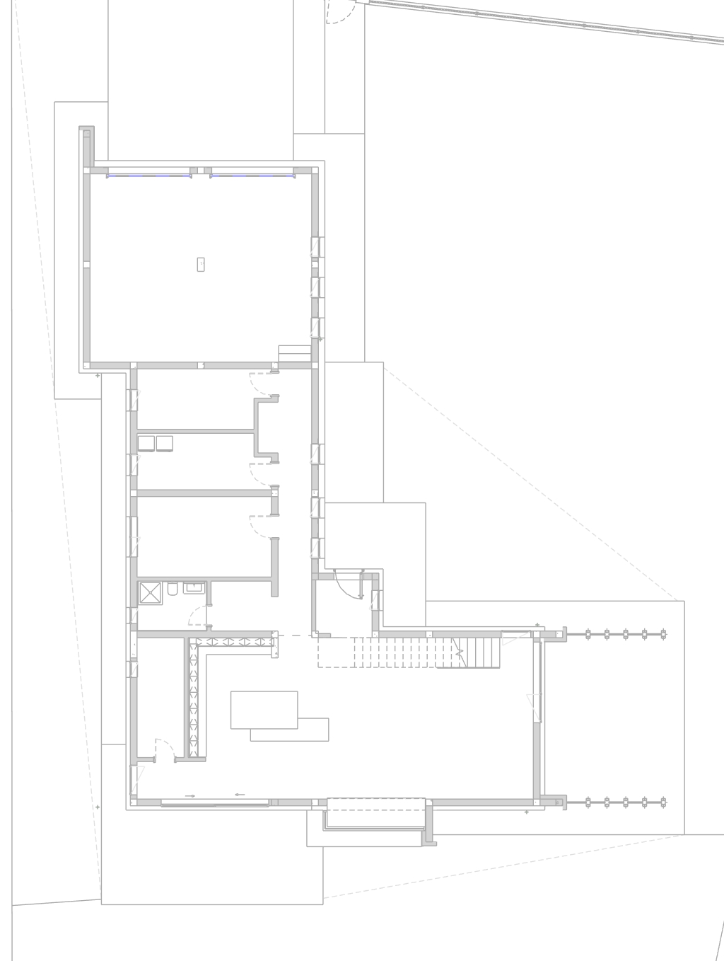
Locuința Avramia
An
2022
Client
Fam. Avramia
Pensiune Râșca
Birou