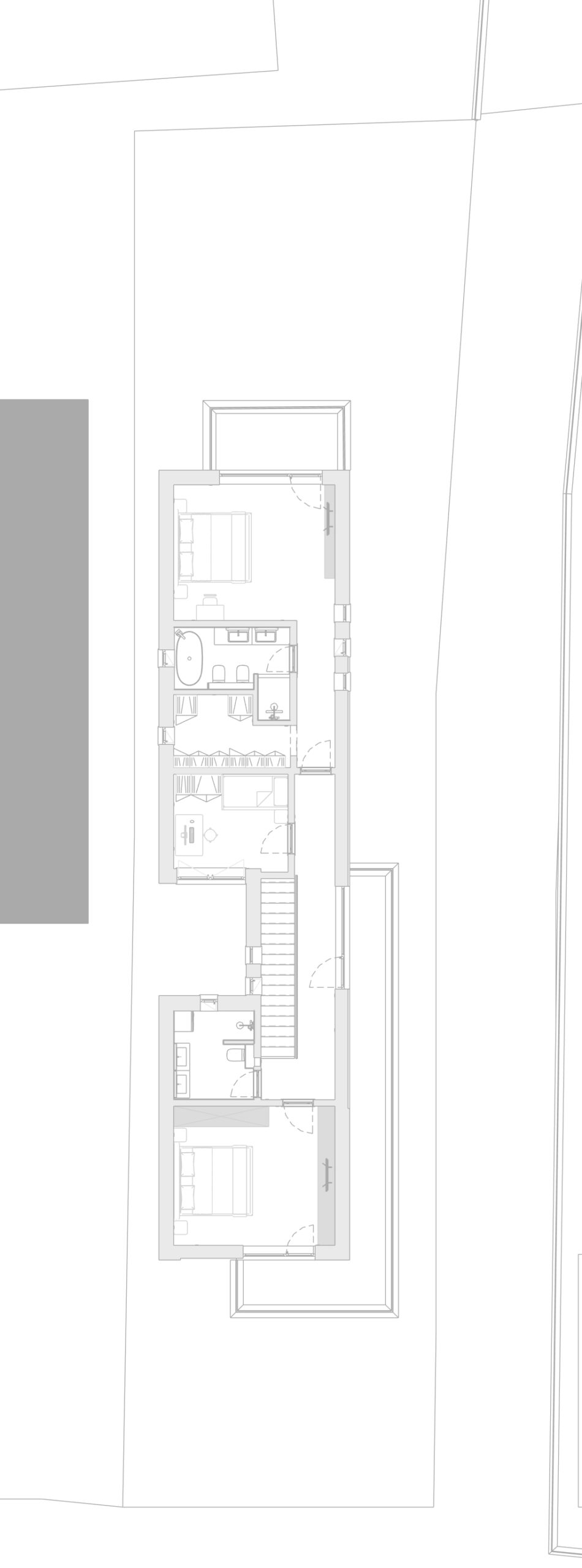
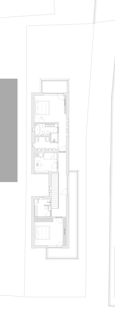
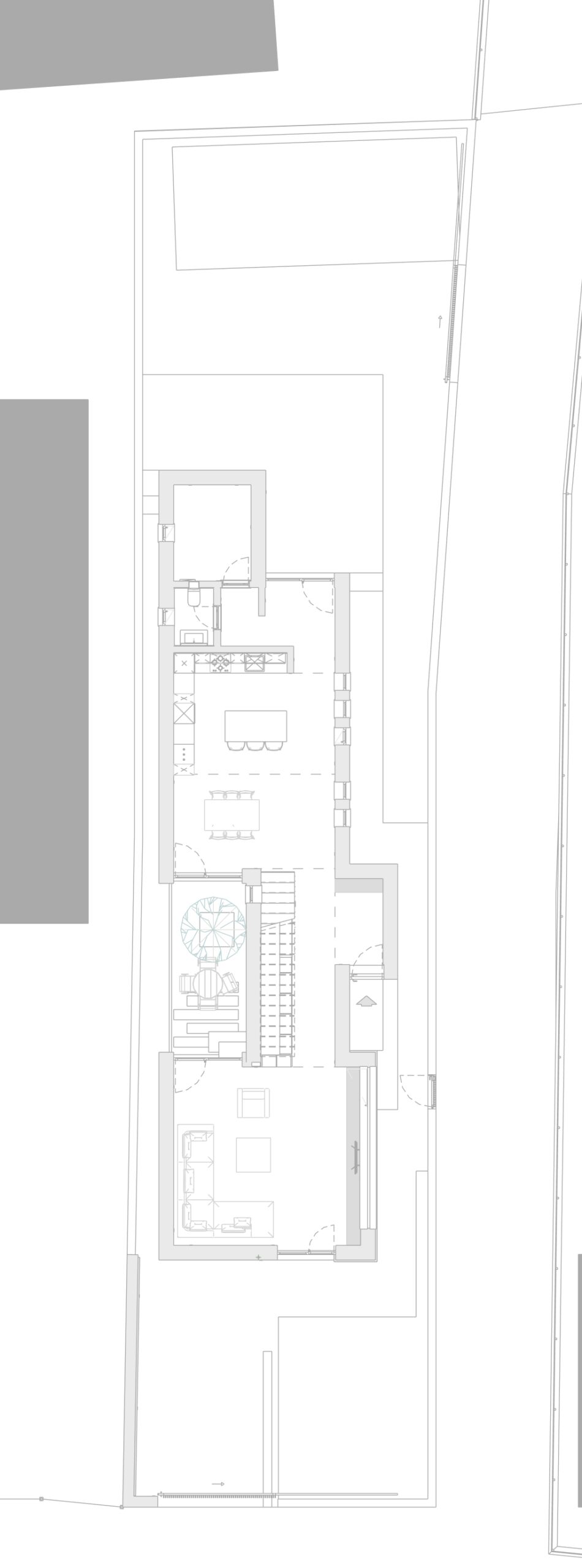
Într-un context urban dens, pe un lot cu o configurație atipic de îngustă, acest proiect redefinește limitele locuirii la interior. Acolo unde spațiul orizontal este limitat, am ales să dezvoltăm volumetria pe verticală, fragmentând masa clădirii pentru a „sculpta” curți de lumină și goluri strategice.


